开云电竞(中国)官方网站-超越游戏 玩出精彩

2024最新!吴中太湖新城纯洋房金融街融悦沁庭金融街融悦沁庭户型配套价格地址图文详解-开云中国电子竞技运动发展中心
关闭
2024最新!吴中太湖新城纯洋房金融街融悦沁庭金融街融悦沁庭户型配套价格地址图文详解
作者:小编 日期:2026-01-09 点击数: 

  您当前使用的浏览器版本过低,可能存在安全风险,建议升开云电竞级浏览器,或者用以下浏览器浏览

  金融街融悦沁庭坐落在吴中太湖新城,是个纯粹的洋房社区。项目占地约4.8万方,建筑面积约11.5万方,规划了609户住宅。社区容积率仅1.6,车位配比达到1:1.5,居住舒适度很高。

2024最新!吴中太湖新城纯洋房金融街融悦沁庭金融街融悦沁庭户型配套价格地址图文详解(图1)

  外立面采用干挂铝板和三玻两腔Low-E玻璃,都是7-10层的纯洋房。交付时标配中央空调、新风系统、地暖三大件,还特别配备了软水系统,让品质生活更上一层楼。

  项目周边配套相当完善,150米内就是4号线号线木里站,出行非常方便。周边还有友新高架、东太湖大道、沪常高速等主干道,轻松串联全城。

2024最新!吴中太湖新城纯洋房金融街融悦沁庭金融街融悦沁庭户型配套价格地址图文详解(图2)

  教育资源更是亮点,与华中师范大学苏州湾实验小学仅一路之隔,还有华中师范大学苏州实验中学、北美国际高级中学等多所优质学校环绕。

2024最新!吴中太湖新城纯洋房金融街融悦沁庭金融街融悦沁庭户型配套价格地址图文详解(图3)

2024最新!吴中太湖新城纯洋房金融街融悦沁庭金融街融悦沁庭户型配套价格地址图文详解(图4)

  商业配套也很丰富,永旺梦乐城、歌林小镇、苏州湾中心广场都在周边,金融街融悦湾中心正在建设中。文体设施有快手天鹅港国际电竞开云电竞馆、苏州橙天嘉禾360剧场,医疗资源包括在建的苏州市立医院总院和星晨儿童医院。

  项目由金融街控股和苏州国太发展联合打造。金融街控股是中国华尔街的缔造者,在吴中太湖新城已经成功开发了融悦湾、融悦时光两个标杆项目。

2024最新!吴中太湖新城纯洋房金融街融悦沁庭金融街融悦沁庭户型配套价格地址图文详解(图5)

  苏州国太发展作为吴中太湖新城的开发建设主体,累计在这里投资约300亿,持续推动区域高质量发展。这是金融街在苏州的第三座融悦系作品,品质有保障。

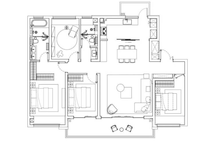
  115㎡的心悠户型,三开间朝南,约5.5米宽厅,2米进深的南向大阳台,全屋飘窗,主卧是套房设计。

2024最新!吴中太湖新城纯洋房金融街融悦沁庭金融街融悦沁庭户型配套价格地址图文详解(图6)

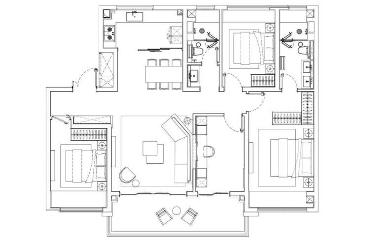
  130㎡的心悦户型,三个卧室都朝南,LDKB一体化设计,双联阳台约2米进深,3+1灵动空间,主卧套房。

2024最新!吴中太湖新城纯洋房金融街融悦沁庭金融街融悦沁庭户型配套价格地址图文详解(图7)

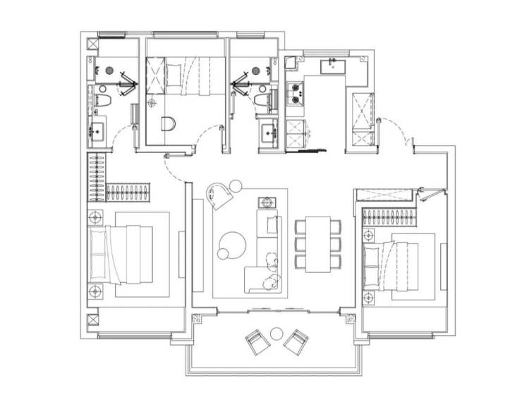
  152㎡的心雅户型,LDBK聚场设计,厨房联通家政阳台,配备中岛台,南北双阳台,四开间朝南,主卧套房。

2024最新!吴中太湖新城纯洋房金融街融悦沁庭金融街融悦沁庭户型配套价格地址图文详解(图8)

  这是区域内稀缺的纯洋房社区,居住密度低,圈层纯粹。外立面采用干挂铝板和大面积三玻两腔玻璃,既美观又实用。

2024最新!吴中太湖新城纯洋房金融街融悦沁庭金融街融悦沁庭户型配套价格地址图文详解(图9)

  精装标准很高,除了三大件还配备了软水系统,所有装修材料都是精选的国际品牌。

2024最新!吴中太湖新城纯洋房金融街融悦沁庭金融街融悦沁庭户型配套价格地址图文详解(图10)

2024最新!吴中太湖新城纯洋房金融街融悦沁庭金融街融悦沁庭户型配套价格地址图文详解(图11)

  在政策利好的大环境下,选择金融街融悦沁庭就是选择了品质生活。这里不仅有优质的居住环境,更有着完善的生活配套和便捷的交通网络。随着吴中太湖新城的持续发展,这里的价值必将与日俱增。

  声明:本文由入驻焦点开放平台的作者撰写,除焦点官方账号外,观点仅代表作者本人,不代表焦点立场。

  2024最新!苏州高铁新城江南云起江南云起楼盘详解户型配套价格开发商实力

  项目采用一线品牌精装交付,贴心设计了7大收纳空间和3大智慧居住场景。象屿地产坚持以住宅开发为核心,商业发展和物业服务为两翼的战略布局,这次选择在苏州高铁新城打造项目,旨在为苏州人创造更美好的居住体验。有独立入

  2024最新!吴风宸樾府吴风宸樾府园区东科技豪宅户型地址配套价格图文详解

  他们还邀请了北京顺景设计和上海HWCD设计团队参与,这两个团队都是顶级豪宅的设计专家。项目所在的甪端新区是园区重点发展区域,未来将聚集生物医药、智能制造等高端产业。地下车库设计独具匠心,以星空为主题。165平

  2025最新!旭辉东吴序旭辉东吴序珍藏级墅居图文详解户型地段配套价格售楼处

  旭辉东吴序坐落于吴中宝带西路与龙西路交汇处,这个占地1.6万方、建筑面积2.5万方的项目,以1.5的低容积率打造出仅78席的隐贵圈层。2025年打造的东吴序,是其别墅灯塔力作。项目以移步换景的园林设计理念,打

  2026最新!苏州奥体芯绿城沁百合绿城沁百合低密洋房户型配套价格售楼处地址

  在这样的政策东风下,位于苏州奥体芯的,正以纯粹的姿态静候知音。2024年绿城在苏州的东园西庐项目更是传奇之作。位于奥体核心地段,齐全生活便利;绿城品牌实力强,产品有保障;设计,居住舒适度高;周边教育资源优

  2024最新!高铁新城和风雅信和风雅信日系精工豪宅户型交通配套价格全解析

  苏州高铁新城房产项目面积从111㎡到249㎡不等,满足不同家庭的居住需求。项目坐拥国家级高铁枢纽优势,通苏嘉甬高铁与京沪高铁在此交汇,形成黄金双十字枢纽。在政策利好的大背景下,凭借其卓越的区位优势、完善的

  熙和・雲启观棠(营销中心)首页网站-熙和・雲启观棠销售中心(售楼处)-地址-价格-户型-小区环境-楼盘详情-交房时间-周边配套-售楼处电线

  苏州狮山豪宅狮子山澜庭/院狮子山澜庭/院评测低密洋房澜墅户型位置周边配套价格

  苏州新房月供降了湖居梦近了!溪前雅居怎么样?北双湖实景叠墅洋房溪前雅居户型价格位置配套

  苏州姑苏新房人民路豪宅和月泊庭和月泊庭怎么样?图文详解户型位置价格市实验小学周边配套

  泗泾绿中海 (2025年泗泾绿中海) 2026官方网站-楼盘评测-户型-价格 泗泾绿中海2025年度最新评测

  绿城潮鸣外滩(售楼处)网站-2025绿城潮鸣外滩营销中心(售楼处中心)欢迎您-周边环境-户型-价格-地址-楼盘详情-户型配套-售楼电线)太仓华发海上云璟售楼处电话楼盘百科华发海上云璟首页网站楼盘百科首页网站24小时热线

  云栖雅集售楼处(云栖雅集)首页网站-昆山云栖雅集营销中心2025最新房价-楼盘详情-户型配套丨2025云栖雅集楼盘详情-价格-面积-云栖雅集户型4

  上海杨浦保利外滩曜售楼处电话丨保利外滩曜2025官方网站丨保利外滩曜楼盘详情/户型/价格/地址/外滩曜售楼处电话

顶部